National University of Singapore – Singapore

Complex building in Singapore (Marina One)

Building use

Complex building

Country/Region

Singapore

Overview

The composite structural steel framing with composite metal decking used for typical floors of the Office Towers was driven by construction programme and to achieve superior head-room requirements.


Basic information (construction date, number of stories, gross floor area, adopted design code, engineer(s), Contractor(s), etc.)

Construction date: 2012-2018
Number of stories: 34
Gross floor area: 352,432m2
Adopted design code: Eurocodes; some aspects of the design adopted British Standards as permissible at the time of design (2012-2014).
Engineer(s): Beca Carter Hollings & Ferner (SE Asia) Pte Ltd
Contractor(s): Hyundai Engineering & Construction and GS Engineering & Construction JV


Issue and/or innovation

The construction programme was very challenging for the project and there was labour shortage in the market at the time. By adopting structural steel for the Office Towers faster construction cycle days and higher productivity can be achieved. The inclined columns and long span posed a challenge for the construction phase (time and speed to complete the works). The composite structural steel framing allowed the complex floor plates (changing at every floor) to be prefabricated and installed with much less site work. The use of metal decking (Bondek II by Lysaght) with 1.0mm to 1.2mm thickness means the slab does not need to be propped during construction. The composite steel solution. The inclined columns are spliced using composite steel connections. While steel beams are deeper than alternative post-tensioned concrete beam solution, large penetrations and haunches were used to allow necessary building services distribution.


Reason for composite solution

Composite columns have the benefit of simpler, faster and more robust beam/truss to column connections. By having steel stubs connected to cast-in steel columns, the typical floor beams and trusses can be connected easier as the tower progressed. Composite steel beams and floors are necessary for the span required on the typical office floors. Some primary beams were up to 22.5m long.


Specific solution/technical details

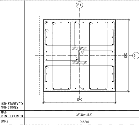
The two office towers are connected at the base via a 4-storey commercial podium building. The two office towers and the podium building are located atop a 4-storey below grade basement structure, full block, Parcels A2 and A3. Each of the office towers is 200 meters tall, measured from ground to the roof level. A typical office floor plate is approximately 4,100 square meters. The office towers are connected at levels 28, 29 and 30 with a sky bridge structure. The total floor area of the sky bridge structure is approximately 6,000 square meters. The gravity framing system at the podium and office levels consists of steel beams and a 130mm composite concrete slab on steel deck floor system. The steel deck will be Bondek II produced by Lysaght (selecting thickness of 1.2, 1.0 or 0.75 as required to avoid the need for propping wherever possible). At the more heavily loaded areas at the podium levels, a 200-mm (or thicker) composite concrete slab on steel deck floor system will be used. Inclined composite columns comprises of cast-in UC steel columns with reinforced concrete encasement. At the floor level – steel stubs welded to the UC steel columns formed part of the connection to the floor beams and trusses.


Impact or effectiveness

Overall the use of structural composite steel systems has improved the construction speed and productivity by adopting composite members. The composite structural steel framing allowed the complex floor plates (changing at every floor) to be prefabricated and installed with much less site work. The use of metal decking (Bondek II by Lysaght) with 1.0mm to 1.2mm thickness means the slab does not need to be propped during construction. The composite steel solution. The inclined columns are spliced using composite steel connections. While steel beams are deeper than alternative post-tensioned concrete beam solution, large penetrations and haunches were used to allow necessary building services distribution. Construction time for the Office Towers, as we understand it, has reduced by 10%, which is very significant for a mega project of this scale. There were savings in the material used and carbon footprint etc – but these were not quantified.


Supplementary documents

Supplementary document - 1 Supplementary document - 2 Supplementary document - 3 Supplementary document - 4 Supplementary document - 5 Supplementary document - 6 Supplementary document - 7 Supplementary document - 8 Supplementary document - 9

Categories

Building, Column, Floor (slab)

constructsteel is not liable for the solutions and products displayed. The companies/solutions providers are solely responsible for the information provided.

All images on this page are used with permission or believed to be in the public domain. If you believe any image infringes your copyright, please contact us at constructsteel@worldsteel.org for prompt resolution.

To upload a product, click here

To view FAQ's, click here