National University of Singapore – Singapore

Complex building in Singapore (State Court)

Building use

Complex building

Country/Region

Singapore

Overview

Composite floor supported by composite beams can reduce the floor height compared to RC structure. Composite floor construction without temporary formwork and props improves the construction speed and cost effectiveness.


Basic information (construction date, number of stories, gross floor area, adopted design code, engineer(s), Contractor(s), etc.)

Construction date: 2014-2019
Number of stories: 55
Gross floor area: 111,792m2
Adopted design code: Eurocode
Engineer(s): CPG Consultants Pte Ltd
Contractor(s): Samsung C&T


Issue and/or innovation

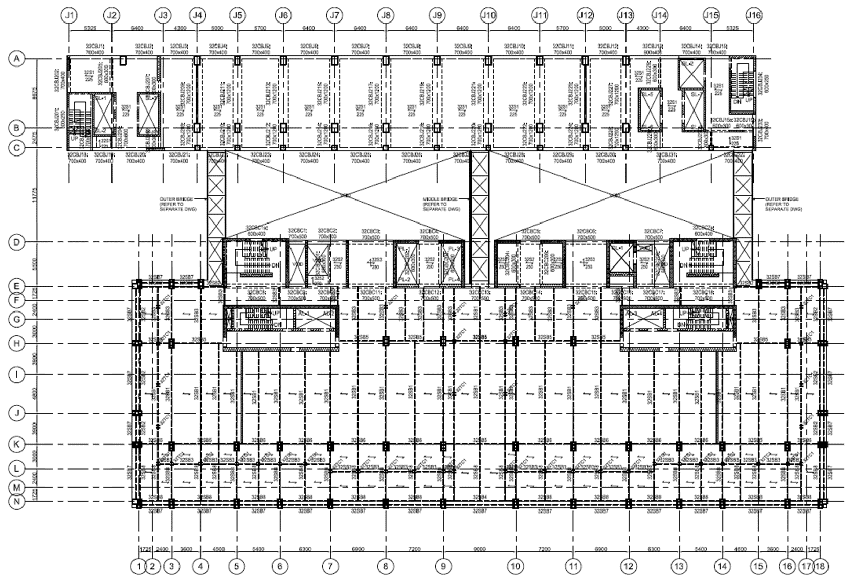
Restricted column sizes for Office Tower & Court Tower
Very high floor to floor height: 8.4m, 10.5m, 14.7m & 16.8m height for Court Tower 4.3m & 6.3m floor height for Office Tower
Restriction of floor beam depth to maintain slim tray effect with long spans (approximate 13m) Very slender Office Tower (192m x 11.8m)
Office Tower needs to be braced by Court Tower through link bridges to keep lateral deflection within allowable limits


Reason for composite solution

To reduce the floor height compared to RC structure.
To improve the construction speed and cost effectiveness.


Specific solution/technical details

Composite Twin-Steel Column: 2 steel I-section encased in high strength reinforced concrete (C60)


Impact or effectiveness

Achieved required design capacity with restricted column size by adopting steel encased composite column with high strength concrete.
Reduced floor depth to create more head room by adopting composite floor.
Composite floor with steel deck requires less temporary formwork and props, which improves the construction speed and cost effectiveness


Supplementary documents

Supplementary document - 1 Supplementary document - 2 Supplementary document - 3

References / Technical Papers

References / Technical Paper - 1

Categories

Building, Column, Floor (slab)

constructsteel is not liable for the solutions and products displayed. The companies/solutions providers are solely responsible for the information provided.

All images on this page are used with permission or believed to be in the public domain. If you believe any image infringes your copyright, please contact us at constructsteel@worldsteel.org for prompt resolution.

To upload a product, click here

To view FAQ's, click here