Tohoku University – Japan

Design and Construction of steel structures with the mid-story pin connection base

Building use

Office building

Country/Region

Japan

Overview

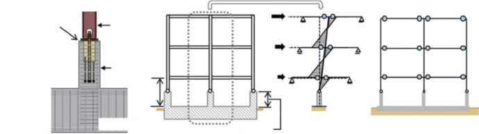
Mid-story pin column base system is proposed to optimize the seismic performance of moment-resisting steel frames, which may form 1st story mechanism during large earthquakes if buildings adopt conventional column base system. By controlling the location of pin connection, the proposed system prevents the 1st story columns from yielding. A pin connection is realized only by that exposed-type column base moved to the mid-story height, and the steel column base is connected to the mid-height RC column extended from the RC base beam. No special technique in design and construction is needed. Up to now, about 10 buildings have been constructed using this proposed base system.


Basic information (construction date, number of stories, gross floor area, adopted design code, engineer(s), Contractor(s), etc.)

Construction date: 2012
Number of stories: 3
Gross floor area: 1,412m2
Adopted design code: Japan Building Standard act; Japanese prequalified design code
Engineer(s): Structural Design Office PLUS ONE inc. (Katsunori Kaneda), Okabe Corporation (Toru Watanabe)
Contractor(s): Kajima Road Co., Ltd.


Issue and/or innovation

To prevent soft story mechanism formed at the 1st story, the bending moment’s inflection height is mechanically controlled by shifting the location of an exposed-type column base connection to the mid-story of the 1st story column. The advantage of this proposed structural system is to realize the optimization of the seismic performance of a moment-resisting steel frame only by simple modification without any special advanced techniques.


Technical details

Conventional moment-resisting steel frames constructed on RC base beams have following concerns:
– with embedded-type column base: Designed allowing the 1st story column base yielding, which may trigger the 1st soft story mechanism.
– with exposed-type column base: Inevitable low story shear stiffness and concentration of flexural demand on the top end of the 1st story column.
By locating a pin connection at the mid-story of the 1st story, proposed structural system has a capability to control column’s flexural demand and maintain sufficient story shear stiffness. Technically, in the proposed structural system or the mid-story column base system, RC columns are extended from RC base beams to the mid-story height and are simply connected with the upper steel column. Exposed-type column base system is adopted for the connection. To realize connections with ideally low rotational stiffness, a special connection detail has been developed. In proposed connection type, a single anchor bolt is used to connect the upper steel column base and the lower RC column , whose embedded part is stiffened by steel plates.


Specific solution/technical details

The following points should be considered in the design and construction of the steel buildings with mid-story column base system.
– RC columns should be designed to be strong enough not to yield in bending.
– The size of RC columns should be carefully adjusted to the size of steel columns, which includes fireproofing and other finishes.
– Connections between upper steel columns and lower RC columns must be designed carefully to transfer shear force stably until a steel frame forms beam-yielding mechanism.
– The height of RC column and the position of anchor bolts should be carefully adjusted. It is recommended that embedded anchor bolts have the same height with that of the RC column to minimize construction process and ensure the accuracy of anchor bolt setting.


Impact or effectiveness

The main features of the mid-story column base system are as follows:
– The connections between steel columns and RC columns do not need to transmit bending moments, which simplifies connection details and facilitates construction.
– Since the columns and foundation beams are the same RC members, the stress transfer at the 1st story column bases becomes clear.
– The simplification of connections and the shortening of the upper steel columns of the 1st story reduces the amount of steel used, thereby reducing the cost of the building frame.
– In the case of embedded-type column bases, the steel erection work must be done before concrete placement for the foundation RC beam, but in the case of the mid-story column bases, the steel erection work is able to be done after all RC work except for the floor slab. Therefore, construction period is little affected by steel fabrication period.
– The basement floor does not need to be made of SRC for continuity with the ground floor and can easily be made of RC.
– Existing design method can be used without requiring special design knowledge.


References / Technical Papers Content

Sachi Furukawa, Kunihiro Takahashi, Toru Watanabe, Toshiaki Someya, Katsunori Kaneda, Yoshihiro Kimura, and Akira Wada. “Effect of anchorage rebars applying to mid-story pin column base connection on stress transfer mechanism and ultimate shear strength under horizontal force”, Journal of Structural and Construction Engineering (Transactions of AIJ), 65(537), 115-120, 2021.8 (https://doi.org/10.3130/aijs.86.1247)
Yoshihiro Kimura, Katsunori Kaneda and Akira Wada. “Estimation of shear and axial force for steel column joints and seismic strength of multi-story steel moment-resisting frames with new column support system”, Journal of Structural and Construction Engineering (Transactions of AIJ), 78(688), 1149-1158, 2013.6 (https://doi.org/10.3130/aijs.78.1149)
Katsunori Kaneda, Yoshihiro Kimura, Shinichi Hamasaki and Akira Wada. “Ultimate seismic capacity of multi-story steel moment-resisting frames having new column support system”, Journal of Structural and Construction Engineering (Transactions of AIJ), 76(661), 1143-1151, 2011.3 (https://doi.org/10.3130/aijs.76.649)
Katsunori Kaneda and Yoshihiro Kimura:” Design and Construction of steel structures with the mid-story pin connection base to prevent 1st column base yielding”, THE STEEL STRUCTURAL TECHNOLOGY, p.20-23, STEEL STRUCTURE JOURNAL CO., LTD., 2020.2


Supplementary documents

Supplementary document - 1 Supplementary document - 2

Categories

Building, Column

constructsteel is not liable for the solutions and products displayed. The companies/solutions providers are solely responsible for the information provided.

All images on this page are used with permission or believed to be in the public domain. If you believe any image infringes your copyright, please contact us at constructsteel@worldsteel.org for prompt resolution.

To upload a product, click here

To view FAQ's, click here