Iuav University of Venice – Italy

Complex building in Goteborg

Building use

Complex building

Country/Region

Sweden

Overview

Karlatornet is a multi purpose tower under construction in Goteborg, Sweden, expected to be completed in 2024- The building has a very distinctive shape with a twist at approximately 2/3 of its height, where the four corners of the tower rotate in different directions. The building is built with a concrete frame and a concrete core. Composite elements are used in some parts, such as the two belt walls that connect the core with the perimeter columns and in the pre-fabricated slab system of the podium.


Basic information (construction date, number of stories, gross floor area, adopted design code, engineer(s), Contractor(s), etc.)

Construction date: 2019-2024
Number of stories: 74
Gross floor area: –
Adopted design code: Eurocode
Engineer(s): Ramboll
Contractor(s): Serneke Group AB


Issue and/or innovation

Due to the specific shape of the tower, belt walls and outriggers are not locked into position till the end of the concrete construction to allow a differential settlement of the different elements due to the progressive load being added on the building (approximately 50.000m2 of concrete used in the structure). During construction, prior to “locking up” the lower outriggers, the lateral force resisting system consists entirely and only of the reinforced concrete core wall.


Reason for composite solution

The local composite reinforcement of the belt wall are created to improve the transfer of forces between the vertical perimeter columns and the core wall. In the podium, composite slabs are created to limit deflection of the construction equipment during the construction stage and of the landscaping after construction work has finished.


Specific solution/technical details

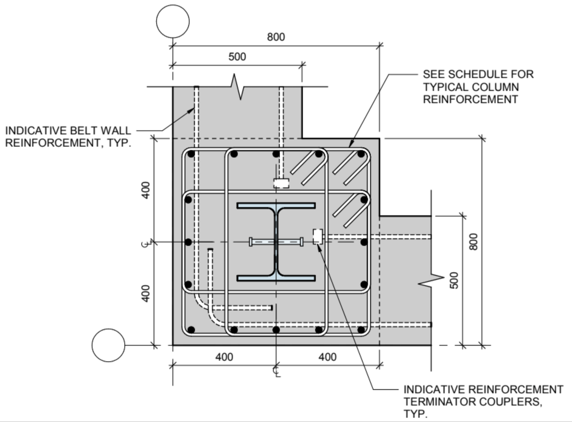
The 4 corner columns in the belt form a composite column of 800x800mm, with a HE300B steel profile embedded in the concrete pour with two layers of rebar reinforcements and a row of shear studs on each side of the web.
The composite reinforcement of the central core (at outriggers/belt wall levels) is formed with an assembly of steel plates acting compositely via shear studs and creating the support for the diagonal reinforcements of the outriggers concrete walls.
The composite slab of the podium deck is formed by pre-fabricated hollow core slabs reinforced with L shaped steel profiles acting compositely by means of shear studs directly embedded in the hollow core pour. These L shaped profiles are then welded on site with those of the next slab by means of field-welded connector plates before the final concrete layer is poured.


Supplementary documents

Supplementary document - 1 Supplementary document - 2 Supplementary document - 3 Supplementary document - 4

Categories

Building, Floor (slab)

constructsteel is not liable for the solutions and products displayed. The companies/solutions providers are solely responsible for the information provided.

All images on this page are used with permission or believed to be in the public domain. If you believe any image infringes your copyright, please contact us at constructsteel@worldsteel.org for prompt resolution.

To upload a product, click here

To view FAQ's, click here