Museum + Auditorium in Barcelona

Building use

Other

Country/Region

Spain

Overview

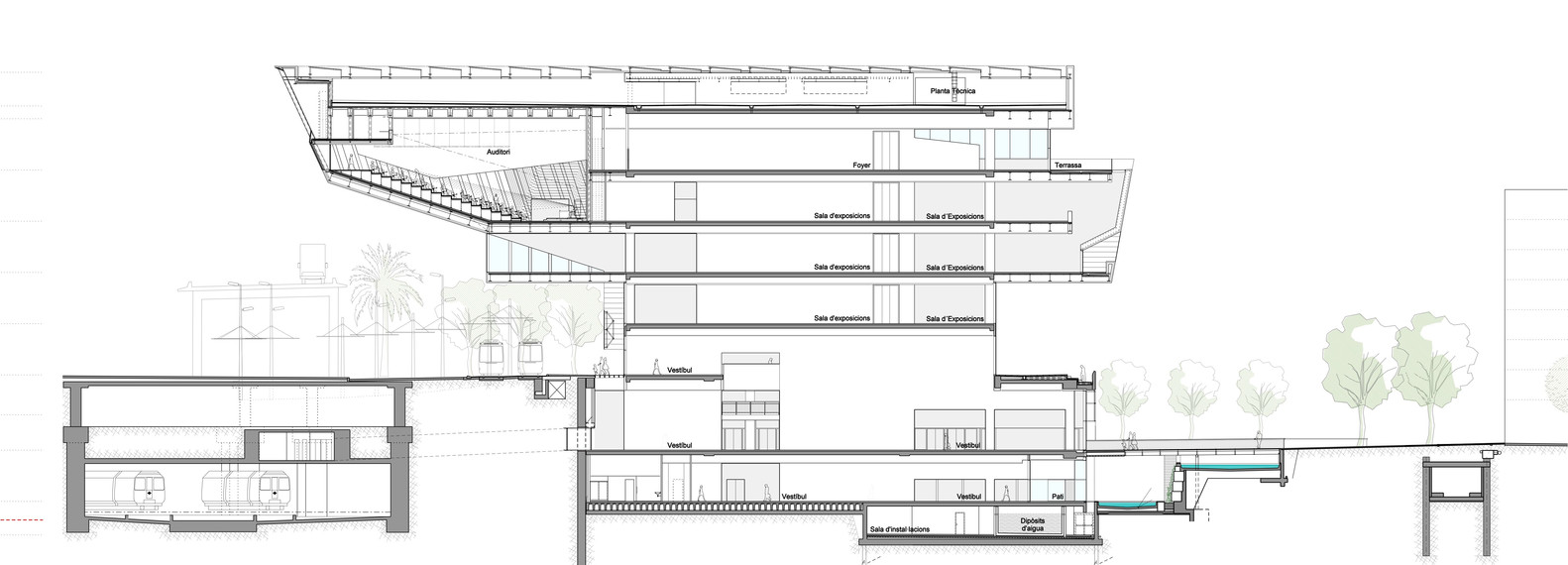
The DHub – Barcelona Design Center building unifies the collections of 4 other museums in a new, larger structure. With an exhibition space of 6000 square meters and the rest dedicated to archives, auditorium, and public spaces the museums is characterized by a very small footprint, due to the need to avoid the occupation of the park that was planned in the immediate surroundings and not to interfere with the railway operation happening in the basement.


Basic information (construction date, number of stories, gross floor area, adopted design code, engineer(s), Contractor(s), etc.)

Construction date: 2013
Number of stories: 5
Gross floor area: 29,352m2
Adopted design code: Eurocode3
Engineer(s): Acciona infrastructuras S.A.
Contractor(s): –


Issue and/or innovation

The most distinctive feature of the building are the cantilevering block that project out of the central concrete core. In particular, the cantilever of the north side spans for 35 meters and a high of 20 meters, housing inside the cantilevered volume an auditorium for 300 people.


Reason for composite solution

The cantilever is realized with a steel truss, while the floors of the auditorium are built with composite construction.


Specific solution/technical details

The mixed slabs arranged between the main trusses are resolved through the use of HEA800 beams, in which a set of voids is made in the webs, thus facilitating the passage of the mechanical services and joining the nodes of the lattices through screwed joints that create isostatic type links. On these beams, in turn, a mixed slab of collaborative sheet metal with a depth of 16 cm is arranged, which, by transforming the transverse beams into mixed elements, allows the span of 20m to be saved with modulations in the area of 2m.


Impact or effectiveness

The composite solution adopted for the floor beams guarantees adequate behavior at all times, limiting the values of deformations and possible vibrations to the regulatory requirements established for its function as an assembly hall.


References / Technical Papers Content

R. Llago Acero, P. Garcia Rodriguez, “El Centro de Disegno de Barcelona”, Hormigon y Acero 2015: 66 (275): 55-67 http://dx.doi.org/10.1016/j.hya.2015.03.002


Supplementary documents

Supplementary document - 1 Supplementary document - 2

Categories

Building, Floor (slab)

constructsteel is not liable for the solutions and products displayed. The companies/solutions providers are solely responsible for the information provided.

All images on this page are used with permission or believed to be in the public domain. If you believe any image infringes your copyright, please contact us at constructsteel@worldsteel.org for prompt resolution.

To upload a product, click here

To view FAQ's, click here