Pieters Bouwtechniek – Netherlands

Office, residential and retail in Rotterdam

Building use

Other

Country/Region

Netherlands

Overview

The building serves as the expansion of the city hall, also providing residential spaces in the downtown area of Rotterdam. The design brief requested for the most sustainable building in the Netherlands and this aspect was declined as flexibility and de-constructability. The building is thus designed entirely in steel, and the whole construction is based on module of 7.2 by 7.2 meters that can be used in an exchangeable way as either office or residential space.


Basic information (construction date, number of stories, gross floor area, adopted design code, engineer(s), Contractor(s), etc.)

Construction date: 2012-2015
Number of stories: 14
Gross floor area: 48,480m2
Adopted design code: Eurocode
Engineer(s): Pieters Bouwtechniek
Contractor(s): Heijmans Utiliteit Rotterdam


Issue and/or innovation

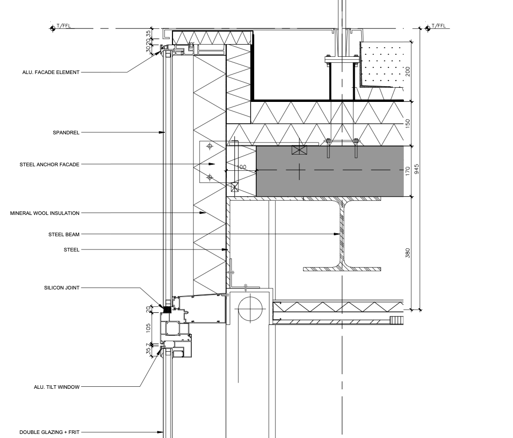
The entire building is suspended on two large steel plinths and cantilevers for up to 21 meters. To avoid temporary shoring elements during concrete pours the concrete slabs had to be particularly thin, with a metal decking able to resist to the dead weight of the concrete before its hardening.


Reason for composite solution

To reduce the thickness of the secondary beam within each module of 7.2 by 7.2 meters, the steel beam works compositely with the concrete decking in each module.


Specific solution/technical details

The structure is formed with steel beams of different thickness with S355 grade, creating modular boxes of 7.2×7.2 meters in base and 3.6 in height. The main load bearing structure is made of steel only, but a composite solution is obtained in the slabs, notably in the secondary beams, that have a reduced section thanks to the composite behavior obtained with the concrete slab by means of a double row of shear studs and a corrugated metal deck with enhanced adherence.


Impact or effectiveness

The compositely formed slabs were used in the composite design of the secondary beams, as lateral restraints for the beams and for the diaphragm action, which gave the steel frame its stability.


Supplementary documents

Supplementary document - 1 Supplementary document - 2 Supplementary document - 3 Supplementary document - 4

Categories

Building, Floor (slab)

constructsteel is not liable for the solutions and products displayed. The companies/solutions providers are solely responsible for the information provided.

All images on this page are used with permission or believed to be in the public domain. If you believe any image infringes your copyright, please contact us at constructsteel@worldsteel.org for prompt resolution.

To upload a product, click here

To view FAQ's, click here