Gilsanz Murray Steficek – Spain

Office building in Madrid

Building use

Office building

Country/Region

Spain

Overview

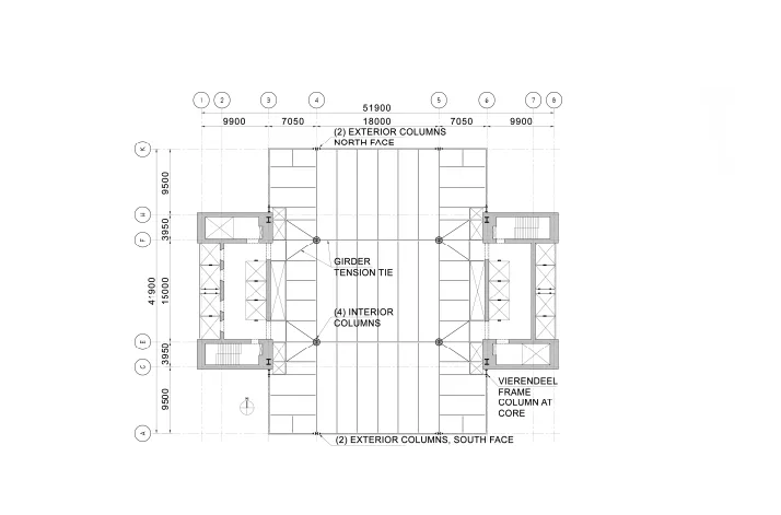
The tower is the fourth, and the tallest of a 4-tower development in Madrid. The building is used as an office building characterized by the slenderness of 1/11th and by the fact that no columns reach the ground floor to leave a unobstructed lobby. The entire building is thus carried only by its two side cores.


Basic information (construction date, number of stories, gross floor area, adopted design code, engineer(s), Contractor(s), etc.)

Construction date: 2004-2009
Number of stories: 49+5 in the basement
Gross floor area: 71,647 m2 in the tower (total area of project 107,966m2)
Adopted design code: Eurocode
Engineer(s): Halvorson & Partners + Gilsanz, Murray and Steficek (GMS)
Contractor(s): FCC & DRAGADOS


Issue and/or innovation

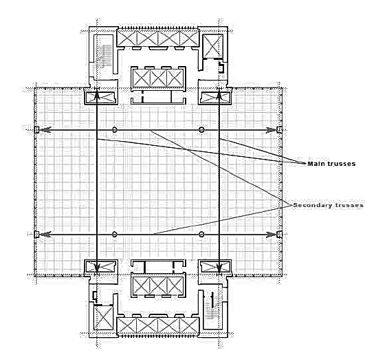
Every 11 floors all the forces brought by the columns are shored to the two lateral cores by means of two 2-story height steel trusses. These two trusses are complimented by two additional Vierendel trusses, orthogonal to the main ones, that support the floor plates cantilevering out of the main perimeter of the tower.


Reason for composite solution

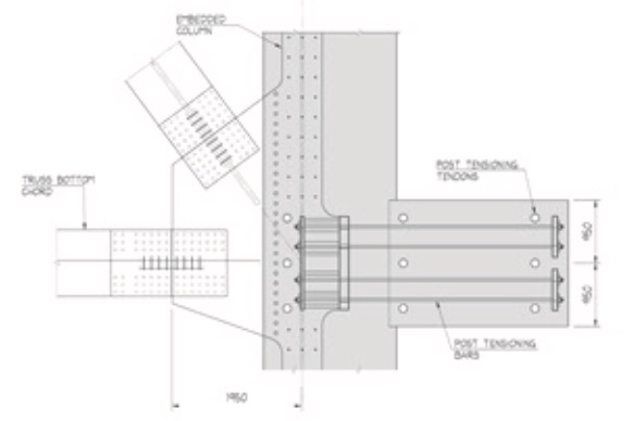
The composite solution was chosen to better dissipate the loads of each couple of trusses to the concrete cores. Steel columns are embedded in the concrete core and hold the connection plates with the trusses, then transferring the load homogenously by means of shear studs welded on both the web and flanges of the steel profiles.


Specific solution/technical details

The Tower has two concrete cores. Each one is 10m in the east-west direction and 23 in the north-south one. Concrete wall vary in strength from 55MPa to 40 mPa and their thickness varies from from 1.2 meter for the main perimeter walls to 0.3m of the internal partitions. The steel reinforcing elements inside the cores are with S460NL sheet steel shapes up to 100 mm thick, supplied from the shop in sections weighing up to 360 kN. These elements work compositely with the concrete by means of shear studs.


Impact or effectiveness

The horizontal forces from the trusses are a result of several conditions. Under gravity loads only, the trusses will induce a moment at the cores. The bottom chord and end diagonal of the trusses will push the cores apart, while the top chords will pull the cores together. Under wind loads, the moments the trusses induce in the core walls will re- verse depending on wind direction. The horizontal loads from the trusses are eccentric to the centroid of the cores. To force the core walls to act as a unit and resist the horizontal truss loads, the cores are tied together with a 1.9 m diaphragm slab at each top and bottom truss chord. The diaphragm slab is post-tensioned in both directions to transfer the horizontal loads to all the core walls. The post-tensioning of the diaphragm slabs is a sequenced procedure that progresses as the floors above each truss level are constructed. To minimize the magnitude of moment the trusses induce in the core under gravity loads, the bolts in the top chord connection of the trusses to the core are not fully tightened until all the dead load has been applied to the truss.


References / Technical Papers Content

Lakota G., Alrcon A., “Torre Caja Madrid: structural design of a singular 250 m building in Madrid
Hormigón y Acero Vol. 59, no 249, págs. 181-202 julio-septiembre, 2008 ISSN: 0439-5689


Supplementary documents

Supplementary document - 1 Supplementary document - 2 Supplementary document - 3 Supplementary document - 4 Supplementary document - 5

Categories

Building, Wall

constructsteel is not liable for the solutions and products displayed. The companies/solutions providers are solely responsible for the information provided.

All images on this page are used with permission or believed to be in the public domain. If you believe any image infringes your copyright, please contact us at constructsteel@worldsteel.org for prompt resolution.

To upload a product, click here

To view FAQ's, click here