Solutions for Column

Office building in Sydney (Grosvenor Place building)

UNSW, Sydney – Australia

The Grosvenor Place building is an iconic building located on the northern part of George Street, Sydney which is on the border of the financial and rocks districts.

Office building in SÃO PAULO

Engineer appointed by Gerdau – Brazil

The composite solution was chosen considering not only the optimized best technical solution (building height, gravitational/lateral forces applied, lateral resistance system adopted), but also the total cost, erection time-consuming and time to get the raw material from providers as well.

School in Montelabbate

Studio AEDITECNE di Vicenza – Italy

Multiple types of steel products, including composite columns (concrete filled tubes) and composite beams (thin-walled steel profiles with concrete infill) were used to retrofit the structural system of an elementary school that was deemed unsafe according to the new code requirements that came into force in Italy in 2003.

Composite frame system called Reinforced Concrete Steel Tube (RCST) system

Shimizu Corporation – Japan

The RCST system consists of concrete-filled steel-tube columns, H-shaped steel beams and beam-column joints with steel cover plates for confinement.

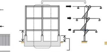
Design and Construction of steel structures with the mid-story pin connection base

Tohoku University – Japan

Mid-story pin column base system is proposed to optimize the seismic performance of moment-resisting steel frames, which may form 1st story mechanism during large earthquakes if buildings adopt conventional column base system.

Office building in Mexico City

John Hopkins University – United States

A special foundation, dampers, and composite columns were adopted to design a tall building in a zone of high seismicity, addressing the new requirements following the 1985 earthquake, with height, versatility, and structural integrity.

Complex building in Singapore (State Court)

National University of Singapore – Singapore

Composite floor supported by composite beams can reduce the floor height compared to RC structure.

Office building in Singapore (Afro Tower)

National University of Singapore – Singapore

High strength composite columns were adopted to satisfy URA comments on aesthetical features for the building.

Hospital / Campus logistic center in Singapore (Outram Community Hospital)

National University of Singapore – Singapore

High strength composite columns were adopted to improve productivity and construction speed, and to reduce column footprints.

constructsteel is not liable for the solutions and products displayed. The companies/solutions providers are solely responsible for the information provided.

All images on this page are used with permission or believed to be in the public domain. If you believe any image infringes your copyright, please contact us at constructsteel@worldsteel.org for prompt resolution.

To upload a product, click here

To view FAQ's, click here